Ansicht Nord
Bauphase
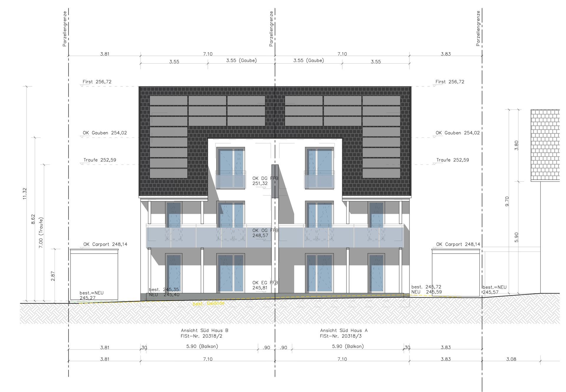
Ansicht Süd
Nasszelle
Wohnzimmer
Treppenhaus
Balkon
Aufstellen der Holzelemente